Купуй зручно до 6 платежів з миттєвою розстрочкою 0.01%. Оплата частинами від ПриватБанк
×Реалізовані проєкти
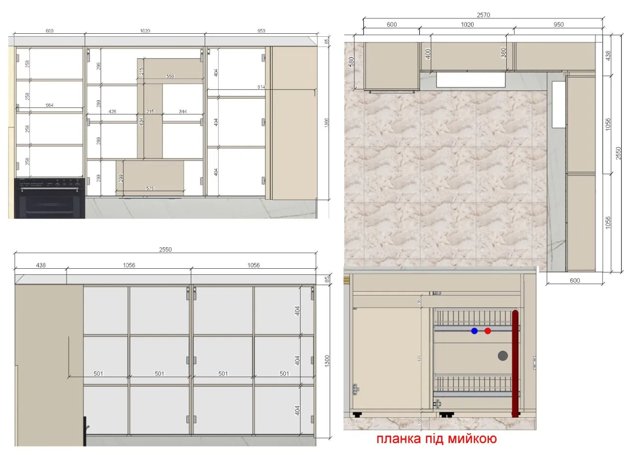
Вартість реалізованого проєкту: 190200
Корпус: ДСП Kronospan 5981 BS Кашемір
Фасади: МДФ фарба мат. + ЛАК Фрезерквання NCS S 2005-Y50R
Висувні механізми: MERIVOBOX BLUMOTION, білий "Шовк"
Відчинення фасадів: на завісах Blumotion Blum
Ручка: Профіль L + С (Gola) золото, карго фасад 150 бокове кріплення з дотягувачем INOXA GOLD хром (Італія)